Proudly Serving Greater London and Surrounding Areas

Floor Plans

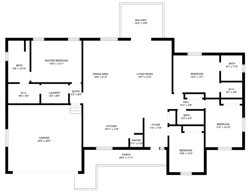
Visualize Your Space with Accurate Floor Plans from Carson Dunlop in London, Ontario

The McTavish Team Proudly Serves Greater London & Surrounding Communities

At Carson Dunlop, we go above and beyond to provide our clients with valuable insights into their home. That’s why we’re proud to offer floor plans that can be completed at the time of your inspection. These plans serve as a detailed map of your property, helping you and your real estate agent visualize the layout and make more informed decisions. Whether you’re buying, selling, or planning future renovations, a clear floor plan is an essential tool.

When you request a floor plan, you’ll receive your easy-to-read 2D floor plan of the property’s layout within 24 hours of your inspection. Each room, garage, deck, patio, and balcony in the home is carefully measured and outlined in the floor plan, showing accurate dimensions so you can understand the scale and space. Keep your floor plan handy to help with furniture placement, plan any renovations, or add to your home’s listing for any future re-sales.

Help potential buyers better understand the property, learn if and where their current furniture will fit, and envision the property as their future home. Check out these statistics about why floor plans are so effective in marketing a home.

81% of consumers agree they’re more likely to view a home if the listing includes a floor plan they like (2021 Zillow Consumer Housing Trends).

According to Zillow, floor plans are the 2nd most important feature on a listing and correlates highly with capturing potential leads.

1 in 5 potential buyers would ignore a listing that does not contain a floor plan (Rightmove.com).

1 in 10 buyers said that they wouldn’t have arranged to view a property if they had not seen a floor plan first (Rightmove.com).

Get a Floor Plan from Carson Dunlop Today

Not only are floor plans valuable for potential homebuyers, they’re a powerful tool for home sellers who want to make their property more appealing to potential buyers. Listings that include a floor plan and virtual walkthrough sell 50% faster than homes that don’t. Contact your local Carson Dunlop inspector today to learn more about our floor plan options.